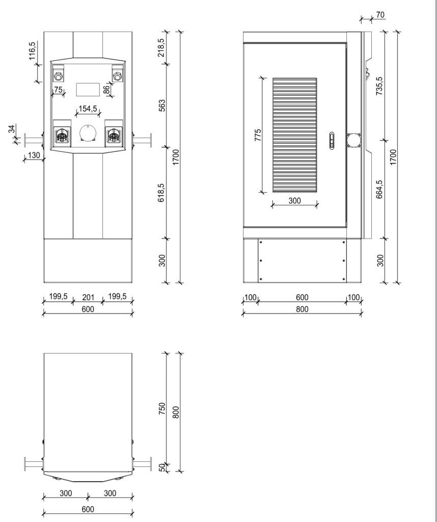
Trạm sạc nhanh xe ô tô điện

Hotline: (028) 6287 1568 Liên hệ